maquetas y planos
PLANO
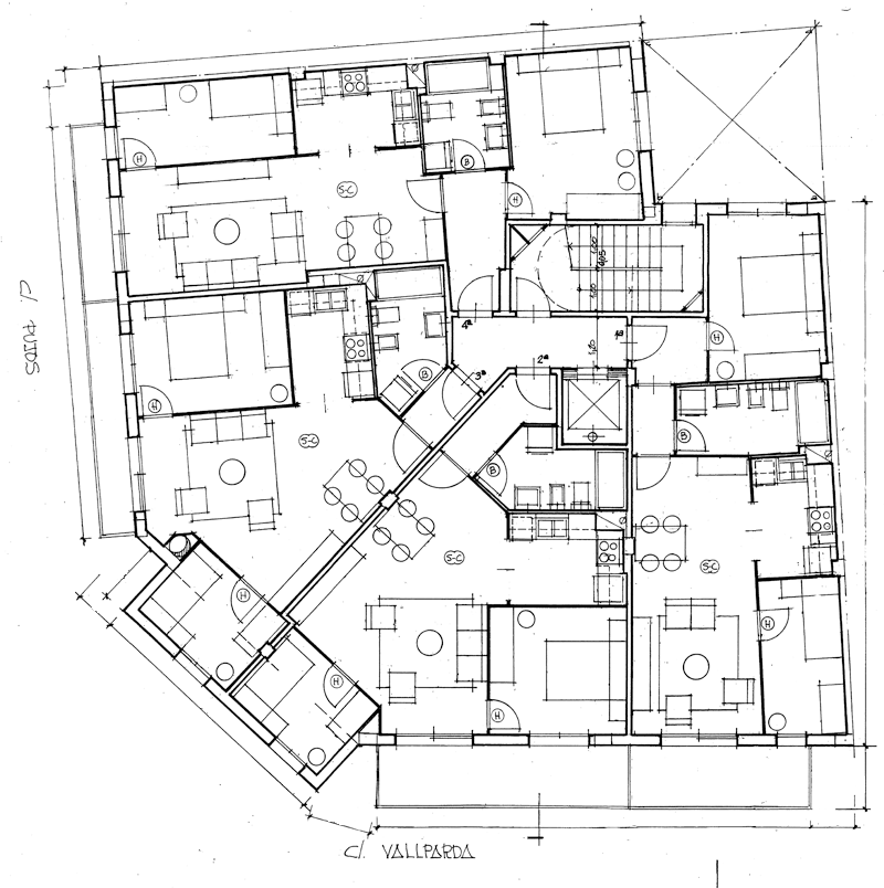
Un plano es una representación gráfica realizado con medio técnicos de una superficie sin realizar una proyección. Por ejemplo, el plano de una ciudad. En Arquitectura es la representación de la planta de una construcción.
MAQUETA
Una maqueta es un montaje funcional, a menor o mayor escala de un objeto, artefacto o edificio, realizada con materiales pensados para mostrar su funcionalidad, volumetría, mecanismos internos o externos o bien para destacar aquello que, en su escala real, una vez construido o fabricado, presentará como innovación o mejora.
CLASES DE MAQUETAS
Las maquetas en Arquitectura.
...Escalas de las Maquetas en Arquitectura. ...Tipos de Maquetas en Arquitectura. ... Maqueta de anteproyecto o de concepto.. Maqueta de trabajo o prototipo. ... Maqueta de proyecto...
PASOS
Elección de la escala. Lo primero que tendrás que decidir es a que escala vas a representar el proyecto. ... Elección de los materiales. Una maqueta es un proyecto en sí mismo. ...
- Despiece. ...
- Corte y replanteo. ...
- Preparación de las piezas. ...
- Unión o pegado. ...
- Acabado.
CLASES DE PLANOS
Plano Entero. En retrato, éste es el plano en el que aparece todo el cuerpo. ...Plano Americano/Tres Cuartos. ...Plano Medio. ...Plano Medio Corto. ...Primer Plano. ...Primerísimo Primer Plano. ...Plano detalle.

MEDIDAS EN PLANOS
ARQUITECTO
El arquitecto es el profesional que se encarga de proyectar, diseñar, dirigir la construcción y el mantenimiento de edificios, urbanizaciones, ciudades y estructuras de diverso tipo. Su arte se basa en reflexionar sobre conceptos del habitar bajo necesidades sociales. Es un profesional con nivel de estudios superiores, que requiere una profunda formación técnica, artística y social. Proyectar edificaciones, espacios urbanos o varias estructuras, y velar por el adecuado desarrollo de su construcción y mantenimiento, es la consecuencia de dicha reflexión, generando un entorno y espacios habitables para el ser humano.
INGENIERO
Un ingeniero o ingeniera es una persona que se dedica la ingeniería. Los ingenieros diseñan materiales, estructuras, máquinas y sistemas teniendo en cuenta las limitaciones impuestas por la practicidad, la seguridad y el coste. Gran parte del trabajo es ciencia aplicada, utilizando la información proporcionada por los científicos.

DISEÑADOR
Un diseñador es un profesional que ejerce la profesión del diseño. Un profesional de este tipo puede dedicarse o especializarse en una gran variedad de objetos o áreas del diseño. Los diseñadores son responsables del desarrollo, en cuanto al proyecto, de un objeto, producto, o concepto.
Los diseñadores trabajan según un proceso de diseño que comienza con la interpretación o detección de un problema o necesidad y culminan con la producción o construcción de la solución a este problema. En este proceso intervienen, entre muchas otras, habilidades que se relacionan con el manejo y conocimiento de las ciencia, auxiliares del diseño la tecnología, la psicología, la forma, la ergonomía, el lenguaje, la comunicación visual, la cultura general y una gran capacidad creativa.

Comentarios
Publicar un comentario